Постоянный поток заказов для инженера-конструктора

Вы инженер-проектировщик КЖ или КМ? Владеете Revit? У нас есть предложение.

Что мы делаем?

Изображение

Проектируем и строим каменные дома

Изображение

Производим домокомплекты и строим каркасные дома

Изображение

Изготавливаем стропильные фермы

Кого мы ищем?

Специалиста по проектированию несущих конструкций, способного самостоятельно конструировать и рассчитывать каменные и железобетонные конструктивные элементы

Мы проектируем в Revit, и надеемся - Вы уже знаете его, или готовы изучить за короткий срок.

Как мы работаем?

Мы обеспечим Вас непрерывным потоком заказов, избавим от необходимости искать заказчиков, доказывать ценность своей работы и дискутировать о ценах. Мы контролируем сроки выполнения работ, а не рабочее время, Вы заранее знаете стоимость своей работы и можете планировать свою жизнь, опираясь на свою производительность. Работайте дома или в нашем офисе-коворкинге.

1
Архитектор
создает модель дома в Revit
2
Координатор
проектов выдает Вам модель и задание на выполнение работы
3
Вы
Проектируете фундаменты, стены, железобетонные перекрытия и пояса, колонны в соответствие с ТЗ, высылаете альбом на проверку
4
Координатор
проектов принимает и проверяет результаты работ
5
2 проекта в месяц
это доход от 80 до 140 тыс. руб.
6
Выплаты - дважды в месяц
Оплачиваем выработку поэтапно каждые 2 недели

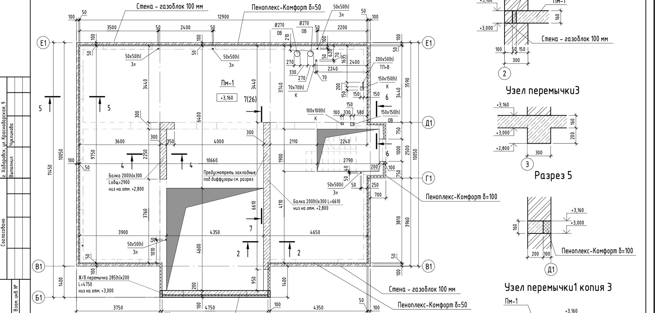
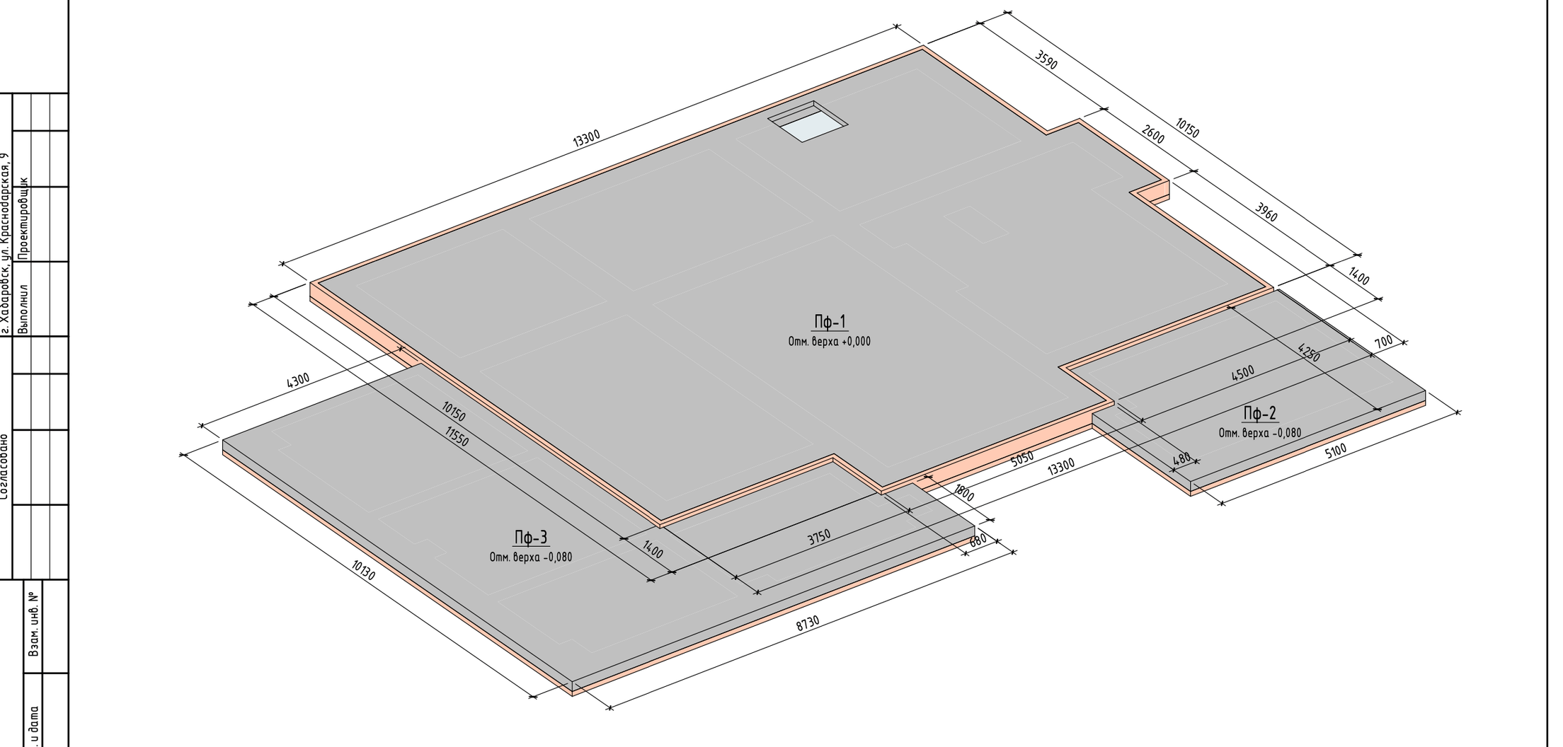
Примеры листов из наших проектов

  • Изображение
    Мы снабжаем все чертежи аксонометрическими проекциями конструкций, это облегчает понимание чертежей на площадке
  • Изображение
    Детализируем, но не мельчим. Чертежи хорошо читаются
  • Изображение
    Даем достаточное количество информации, чтобы строитель не ломал голову
  • Изображение
    Алтьбом состоит из проекта фундамента, стен, перекрытий, поясов, лестницы и плоской крыши (при ее наличии)
  • Изображение
    Знаете, как сделать лучше? Мы ценим профессионалов!

    Все написано

    У нас есть четкие установленные требования к комплекту чертежей. Вам не придется участвовать в длинной цепочке согласований, на этапе проектирования КР все основные решения приняты, остается только выполнить работу.

    Стоимость, которую мы платим за каждый комплект чертежей, фиксирована и зависит от площади, этажности и сложности формы дома.

    Например, стоимость комплект чертежей КЖ для двухэтажного дома площадью 160 м2 (фундамент, стены, перекрытие, монолитный пояс, лестница) мы оцениваем в 58 000 руб.


    Готовы присоединиться к нам?

    Контакты

    Адрес

    Хабаровск, ул. Пушкина, 54 оф. 404

    Время работы

    Пн-Пт: 9:00-18:00
    Сб: 10:00-14:00
    Вс: выходной

    +7 (4212) 93-93-96

    office@domprometei.ru